Neubau Landesfeuerwehr- und Katastrophenschutzschule, Homburg

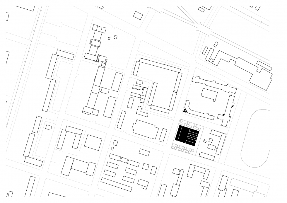
Der Entwurf entwickelt aus der Topographie und dem komplexen Raumprogramm eine klare, funktionale und identitätsstiftende Campusstruktur
250912 Erläuterungen LFKS
. Der natürliche Höhenversprung zwischen Übungshof im Süden und Schulbereich im Norden wird als ordnendes Prinzip genutzt. Von Norden erscheint das Gebäude als zweigeschossiges Schulhaus mit großzügigen Fensterflächen und Holzobergeschossen, die eine helle, freundliche Lernatmosphäre schaffen.
Die südlich angeordneten Fahrzeughallen fassen den Übungshof klar und robust. Werkstätten, Umkleiden und Schulungsräume gruppieren sich kompakt um hofartige Bereiche und ermöglichen kurze Wege zwischen Theorie und Praxis. Gastronomie- und Seminarräume orientieren sich zur Terrasse mit Blick auf das Übungsgelände und stärken den Campuscharakter.
Die funktionale Gliederung trennt Feuerwehrzentrum und Schulbetrieb klar, schafft jedoch Synergien durch gemeinsame Nutzung von Seminarräumen und Außenflächen. Ausbildung, Fahrzeuge und Übungsgelände sind direkt miteinander verknüpft.
Konstruktiv verbindet das Gebäude ein massives Erdgeschoss aus Recyclingbeton mit nachhaltigen Holzobergeschossen. Energieeffiziente HLS-Systeme, Photovoltaik und Regenwassermanagement sichern einen ressourcenschonenden Betrieb. Kompaktheit, klare Erschließung und differenzierte Materialwahl schaffen eine robuste, zukunftsfähige Ausbildungsstätte.
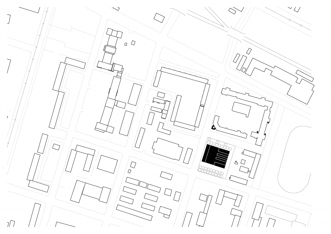
250912 Erläuterungen LFKS
. Der natürliche Höhenversprung zwischen Übungshof im Süden und Schulbereich im Norden wird als ordnendes Prinzip genutzt. Von Norden erscheint das Gebäude als zweigeschossiges Schulhaus mit großzügigen Fensterflächen und Holzobergeschossen, die eine helle, freundliche Lernatmosphäre schaffen.
Die südlich angeordneten Fahrzeughallen fassen den Übungshof klar und robust. Werkstätten, Umkleiden und Schulungsräume gruppieren sich kompakt um hofartige Bereiche und ermöglichen kurze Wege zwischen Theorie und Praxis. Gastronomie- und Seminarräume orientieren sich zur Terrasse mit Blick auf das Übungsgelände und stärken den Campuscharakter.
Die funktionale Gliederung trennt Feuerwehrzentrum und Schulbetrieb klar, schafft jedoch Synergien durch gemeinsame Nutzung von Seminarräumen und Außenflächen. Ausbildung, Fahrzeuge und Übungsgelände sind direkt miteinander verknüpft.
Konstruktiv verbindet das Gebäude ein massives Erdgeschoss aus Recyclingbeton mit nachhaltigen Holzobergeschossen. Energieeffiziente HLS-Systeme, Photovoltaik und Regenwassermanagement sichern einen ressourcenschonenden Betrieb. Kompaktheit, klare Erschließung und differenzierte Materialwahl schaffen eine robuste, zukunftsfähige Ausbildungsstätte.
Realisierungswettbewerb Ankauf