© Petra Steiner
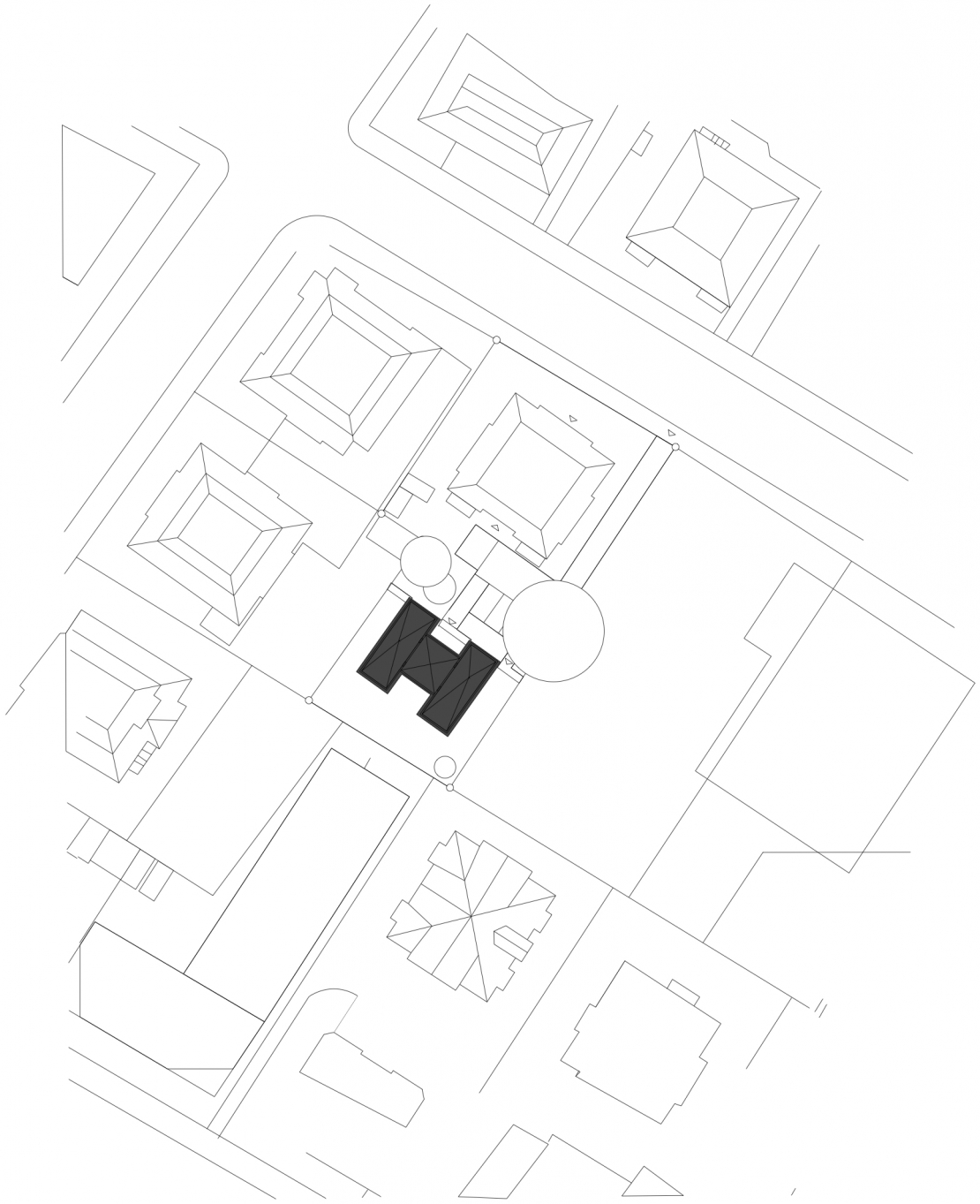
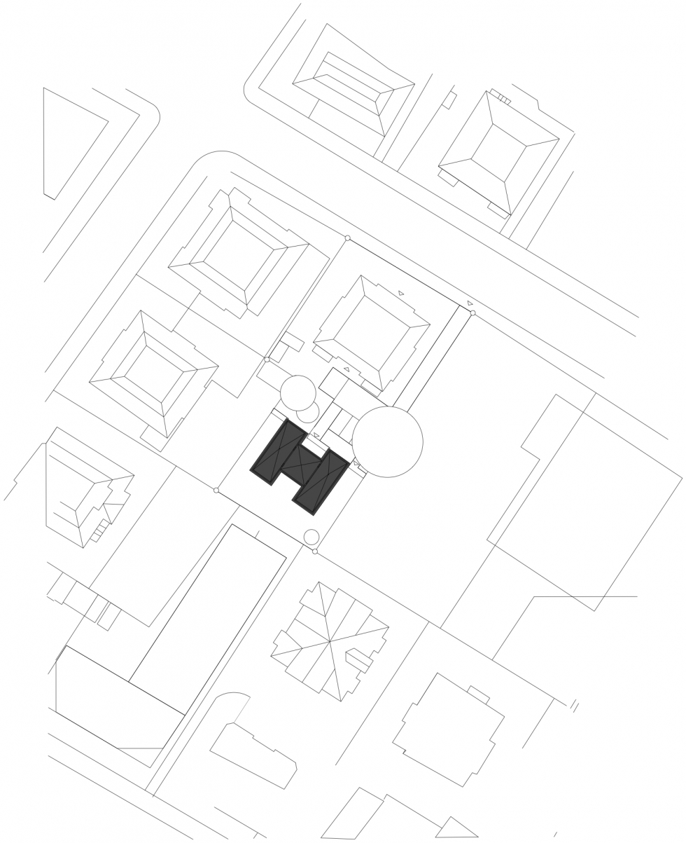
Wohnhaus Augsburgstrasse, Dresden
Mit diesem Gebäudekonzept wird ein kostengünstiger Einstieg in den Erwerb von Wohneigentum möglich. Dabei wächst das Haus schrittweise mit den Bedürfnissen und finanziellen Mitteln seiner Bewohner .
Das Starterhaus bietet eine preiswerte Loftfläche, die später durch den Einbau weiterer Trennwände und einer Geschossdecke für den Bedarf einer Kleinfamilie ausgebaut werden kann. Durch einen Anbau mit großzügigem Wohnzimmer oder Studio entsteht das ‚Komforthaus‘ mit einer Wohnfläche von 130 qm. Wahlweise ermöglicht diese Bauweise entweder eine Dachterrasse oder ein zusätzliches Kinderzimmer im ersten Stock, wodurch sich die Wohnfläche nochmals vergrößern lässt. Auch ein Rückbau nach dem Auszug der Kinder ist im Rahmen dieses Konzeptes ganz einfach realisierbar. Grundstück und Haus lassen sich in zwei Einheiten teilen, so dass eine abgetrennte Einliegerwohnung bzw. ein vermietbares Büro entstehen können.
Dieses Konzept wurde im Rahmen des großen Capital-Ideenwettbewerbs für innovative Baukonzepte preisgekrönt und bereits mehrfach auf unterschiedlichen Bauplätzen umgesetzt.
Das Starterhaus bietet eine preiswerte Loftfläche, die später durch den Einbau weiterer Trennwände und einer Geschossdecke für den Bedarf einer Kleinfamilie ausgebaut werden kann. Durch einen Anbau mit großzügigem Wohnzimmer oder Studio entsteht das ‚Komforthaus‘ mit einer Wohnfläche von 130 qm. Wahlweise ermöglicht diese Bauweise entweder eine Dachterrasse oder ein zusätzliches Kinderzimmer im ersten Stock, wodurch sich die Wohnfläche nochmals vergrößern lässt. Auch ein Rückbau nach dem Auszug der Kinder ist im Rahmen dieses Konzeptes ganz einfach realisierbar. Grundstück und Haus lassen sich in zwei Einheiten teilen, so dass eine abgetrennte Einliegerwohnung bzw. ein vermietbares Büro entstehen können.
Dieses Konzept wurde im Rahmen des großen Capital-Ideenwettbewerbs für innovative Baukonzepte preisgekrönt und bereits mehrfach auf unterschiedlichen Bauplätzen umgesetzt.
Bauherr:
Privat
Daten:
Wohnfläche 170 qm
Gesamtbaukosten 1.840.000 Mio. Euro
Planungs- und Ausführungszeitraum:
2005-2007
Privat
Daten:
Wohnfläche 170 qm
Gesamtbaukosten 1.840.000 Mio. Euro
Planungs- und Ausführungszeitraum:
2005-2007
© Petra Steiner
© Petra Steiner